Aishwarya Bhasin

As a graduate architect from Swinburne University of Technology, I am driven by a passion for creating spaces that resonate with people and enhance their everyday experiences. Throughout my studies, I have explored the intersection of form, function, and human interaction, developing a design approach that prioritizes both aesthetic impact and user experience. My work is guided by a belief that architecture is not just about buildings, but about the relationships people have with the spaces they inhabit.

I have engaged in projects ranging from residential and public spaces to community-focused initiatives, always aiming to design environments that are inclusive, adaptable, and meaningful. I enjoy the challenge of translating complex ideas into spatial solutions that respond to context, culture, and the needs of diverse users.

Looking ahead, I am eager to contribute to architecture that inspires, connects, and improves the way people experience the world around them, creating spaces that are both functional and emotionally engaging.

The Collective Pillars

This project reimagines a former Cremorne warehouse as a vertical, evolving community for students, young couples, and emerging families. Built on the idea of the “Pillar,” the design supports residents through different life stages, offering affordable student living that can transition into larger, family-friendly homes over time. By layering new housing above the existing brick fabric, the project preserves Cremorne’s industrial heritage while creating a flexible, future-focused model for inner-city living.

The Collective Pillars

The site offers a diverse range of family-oriented apartments, ensuring all household types and living scenarios are supported, while the existing warehouse is adapted to provide high-quality student accommodation.

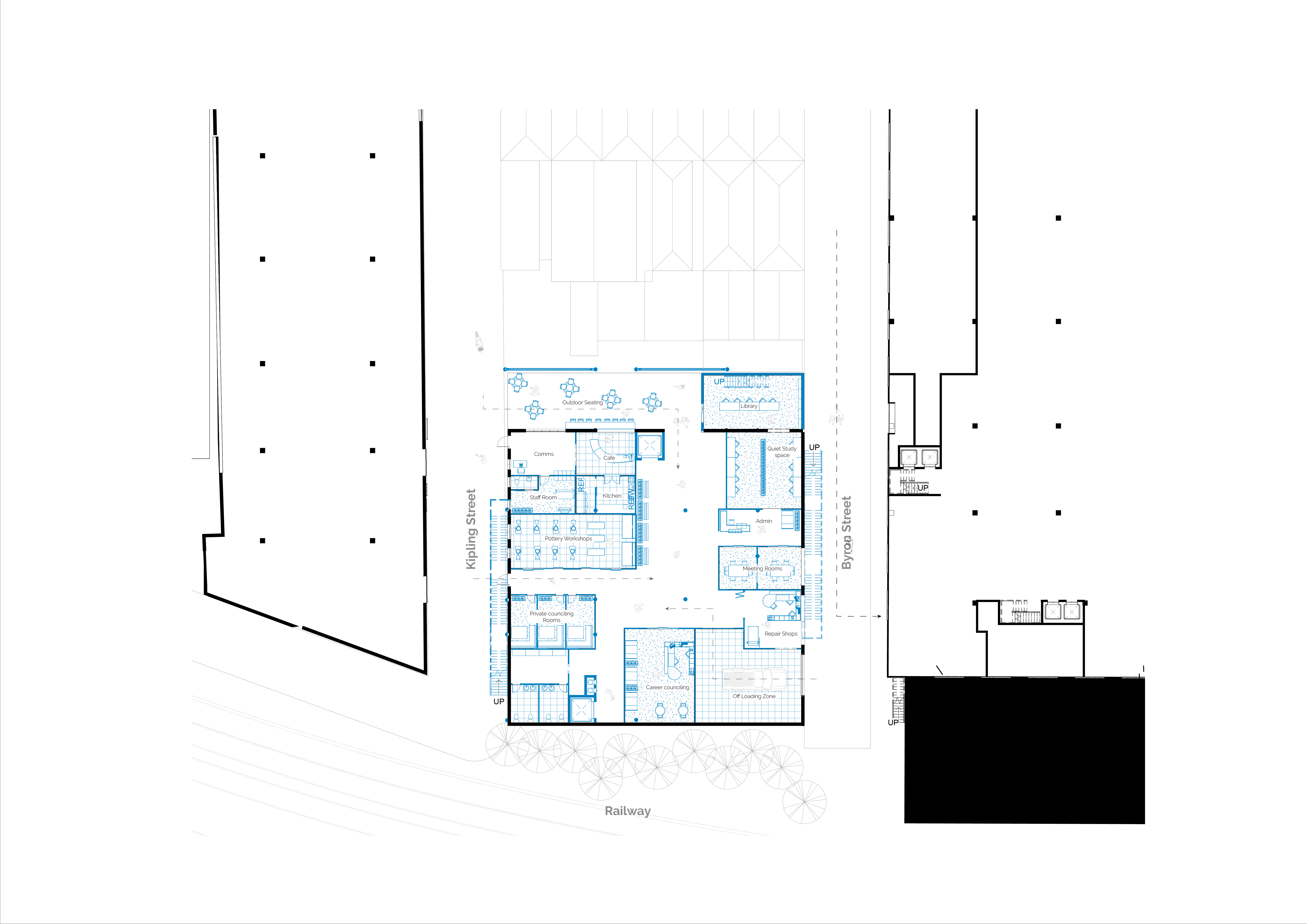
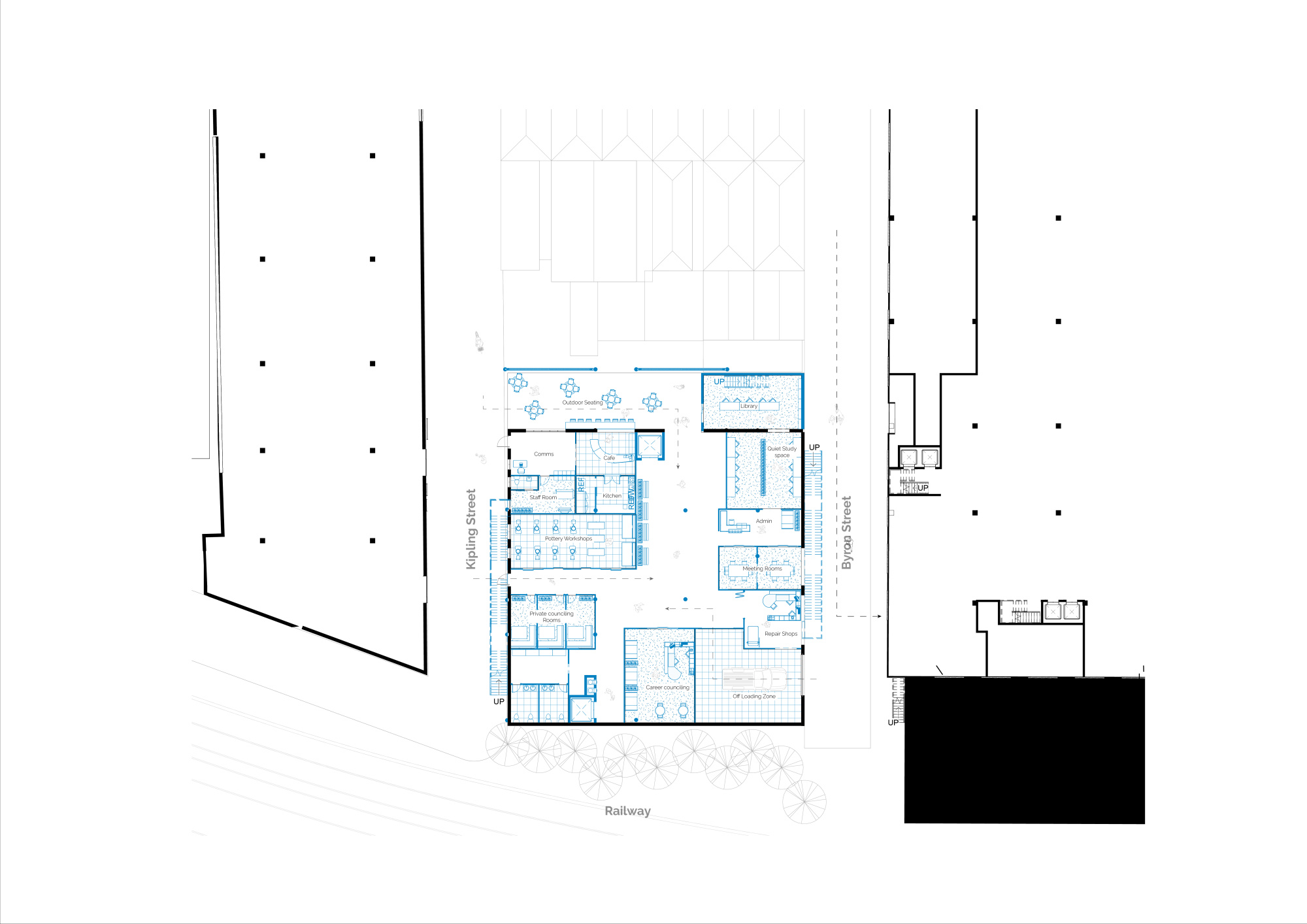
The Collective Pillars

The ground floor of "The Collective Pillars" introduces a generous mix of public programs that encourage interaction and create meaningful connections between residents and the wider community.

The Lungs of Burke

“The Lungs of Bourke” is envisioned as a reflection of Melbourne’s core values: sustainability, inclusivity, and urban vibrancy. Rooted in the city’s strong culture of environmental awareness, the project not only aligns with Melbourne’s sustainability goals but actively enhances them, serving as an architectural catalyst for responsible and ecological urban living.

Multi-generational Housing

The “Multi-Generational Housing” project investigates the redevelopment potential of the former VicRoads headquarters on Denmark Street, Kew. With the site now slated for residential use, the proposal envisions a diverse housing community that supports people of all ages,from young children to older residents. The design creates a self-sufficient environment where daily needs can be met within the site, allowing residents to live, connect, and thrive in their own mini-city.